Teague
  • Home
  • Projects
  • Services
  • About
  • More
    • Home
    • Projects
    • Services
    • About
Teague
  • Home
  • Projects
  • Services
  • About

Tamboers Terraces | Townhouse Development | Tamboerskloof




A conceptual undertaking, which is a cost effective and timeous method of delivering a high-level budget design, suitable for feasibility costing.



Milner Street. View of the semi-detached townhouses. 








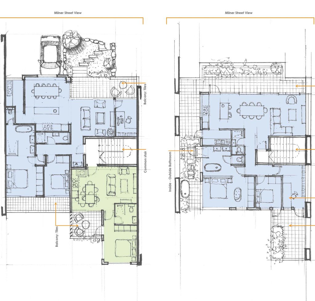
Ground, First and Second floors of the typical townhouse







Milner Street. View of the apartments component of the scheme. 








Plans showing three apartments over two floors.

© Teague Architects 2025